$230,500
$230,000
0.2%For more information regarding the value of a property, please contact us for a free consultation.
116 Graystone Drive Moore, SC 29369
3 Beds
3 Baths
1,795 SqFt
Key Details
Sold Price $230,500
Property Type Single Family Home
Sub Type Single Family Residence
Listing Status Sold
Purchase Type For Sale
Approx. Sqft 1600-1799
Square Footage 1,795 sqft
Price per Sqft $128
MLS Listing ID 1463288
Sold Date 03/03/22
Style Traditional
Bedrooms 3
Full Baths 2
Half Baths 1
HOA Y/N no
Annual Tax Amount $3,224
Lot Size 1.770 Acres
Property Sub-Type Single Family Residence
Property Description
Great investors find! 3 bedroom 2.5 bath with bonus room house with 2 car attached garage, 1 car detached garage, 3 horse stalls, fenced in area for your horses to run on 1.77 acres. The house does need some fixing up. It needs a new heating and air unit, a dishwasher and some TLC. It is being sold AS IS Homes refurbished in the neighborhood have gone fore $315k to $345k. This is a steal at $230k
Location
State SC
County Spartanburg
Area 033
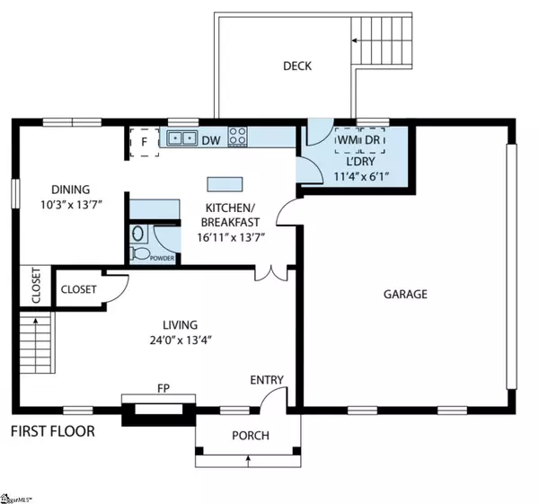
Rooms
Basement None
Interior
Interior Features Ceiling Fan(s)
Heating None
Cooling None
Flooring Carpet, Laminate
Fireplaces Number 1
Fireplaces Type Wood Burning
Fireplace Yes
Appliance Range, Microwave, Electric Water Heater
Laundry 1st Floor, Walk-in, Laundry Room
Exterior
Parking Features Attached, Paved, Detached
Garage Spaces 2.0
Fence Fenced
Community Features None
Roof Type Composition
Garage Yes
Building
Lot Description 1 - 2 Acres, Pasture, Sloped, Few Trees
Story 2
Foundation Crawl Space
Sewer Public Sewer
Water Public
Architectural Style Traditional
Schools
Elementary Schools Fairforest
Middle Schools Fairforest
High Schools Dorman
Others
HOA Fee Include None
Special Listing Condition In Foreclosure
Read Less
Want to know what your home might be worth? Contact us for a FREE valuation!

Our team is ready to help you sell your home for the highest possible price ASAP
Bought with Non MLS






